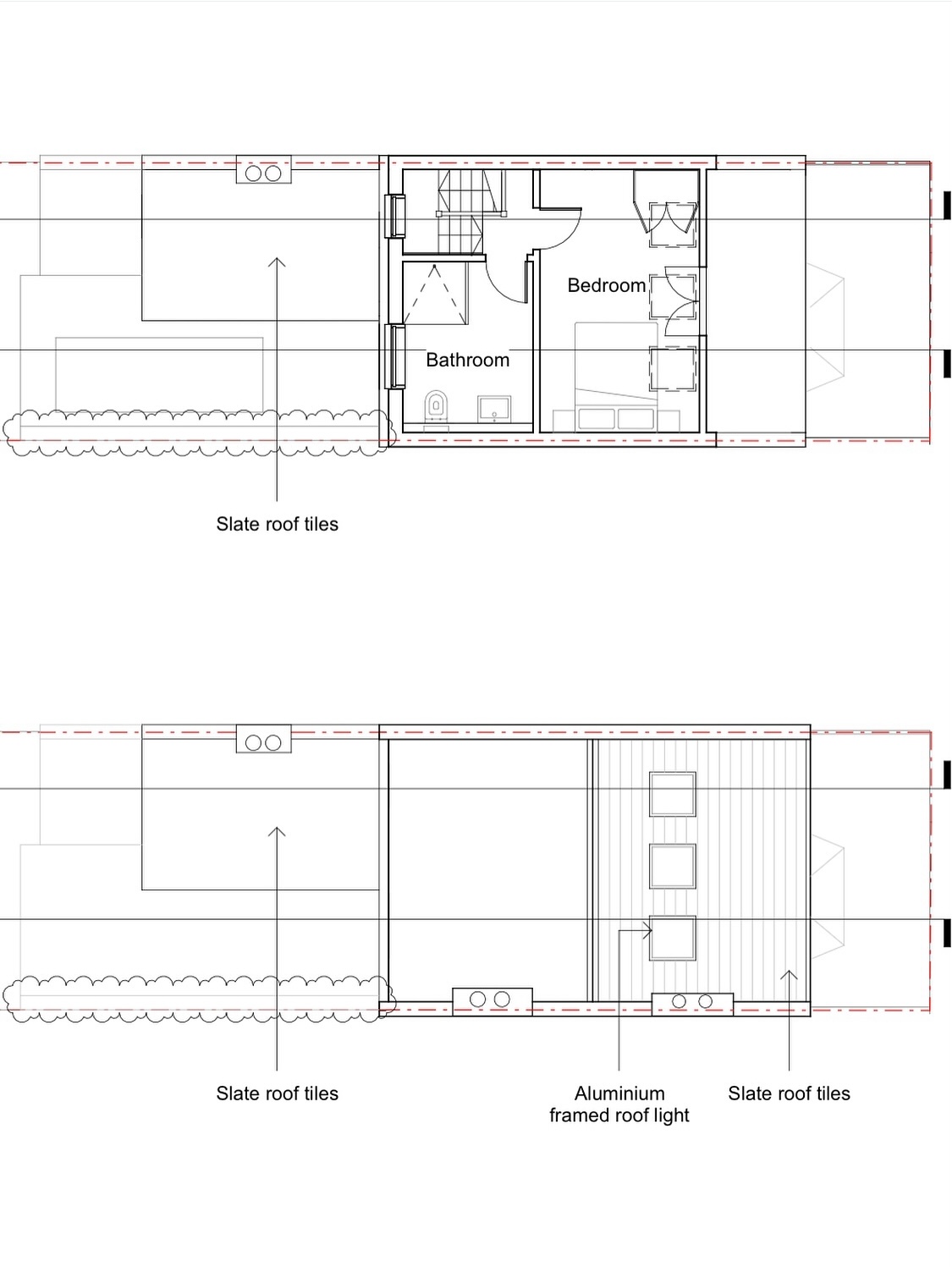
Notting Hill project concludes

March 3 2026

Other recent news

image
Planet Organic completed scheme in N1
April 9 2026

Refurbishment works complete for Planet Organic in Islington, carried out by Forward Contracting (UK) Ltd. Our role provided cost consultancy and project management services for upgrades/reconfiguration works to the retail trading area. Keys issues were to tie in various client contractors to carry out the following works: – Replacement of the air conditioning installation/retail unit […]

>
image
All The Best to Neil!
April 1 2026

After 36 years of being at F&T, Neil will be taking on a part time role (three days a week) within the organisation from the end of March.

>